金属褶层编织雨舟茧房洪泛平原诗意夜曲的乡村住宅设计
该乡村住宅设计灵感来源于一首诗歌。“当夜晚风起雨落,黑暗中房屋幻梦成舟。”—— 西尔维娜・奥坎波《夜曲》
奥纳住宅源于对日常的深度渴望:聆听金属屋顶的雨声、在门廊下饮用马黛茶、从窗棂望月亮、在厨房眺望人行道、于淋浴间凝视庭院。其设计亦基于实用考量:尽量减少对地面的干预、快速建造并使用非常规材料。
设计自宅向来是挑战。这个项目由经历、记忆与旅行淬炼而成,最终成为一处不仅感知雨水,更礼赞水元素的庇护所。住宅位于加里波第别墅,地处埃尔佩斯卡多溪的洪泛平原 —— 该区域唯一未受污染的水道。这里不仅是排水与空气质量的关键地带,更是延伸至罗萨里奥的大都市最后边界。
设计融入了区域景观中牧场与老式 “香肠” 房屋共有的核心建筑元素 —— 门廊。它为人们遮挡暴雨与夏季西北方的烈日,以 “C” 形延展,保护建筑最易受气候影响的侧面。东北侧门廊向野趣花园敞开,形成室内外的过渡空间。
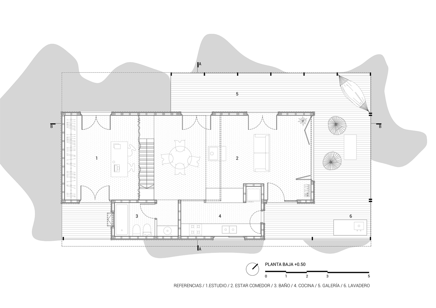
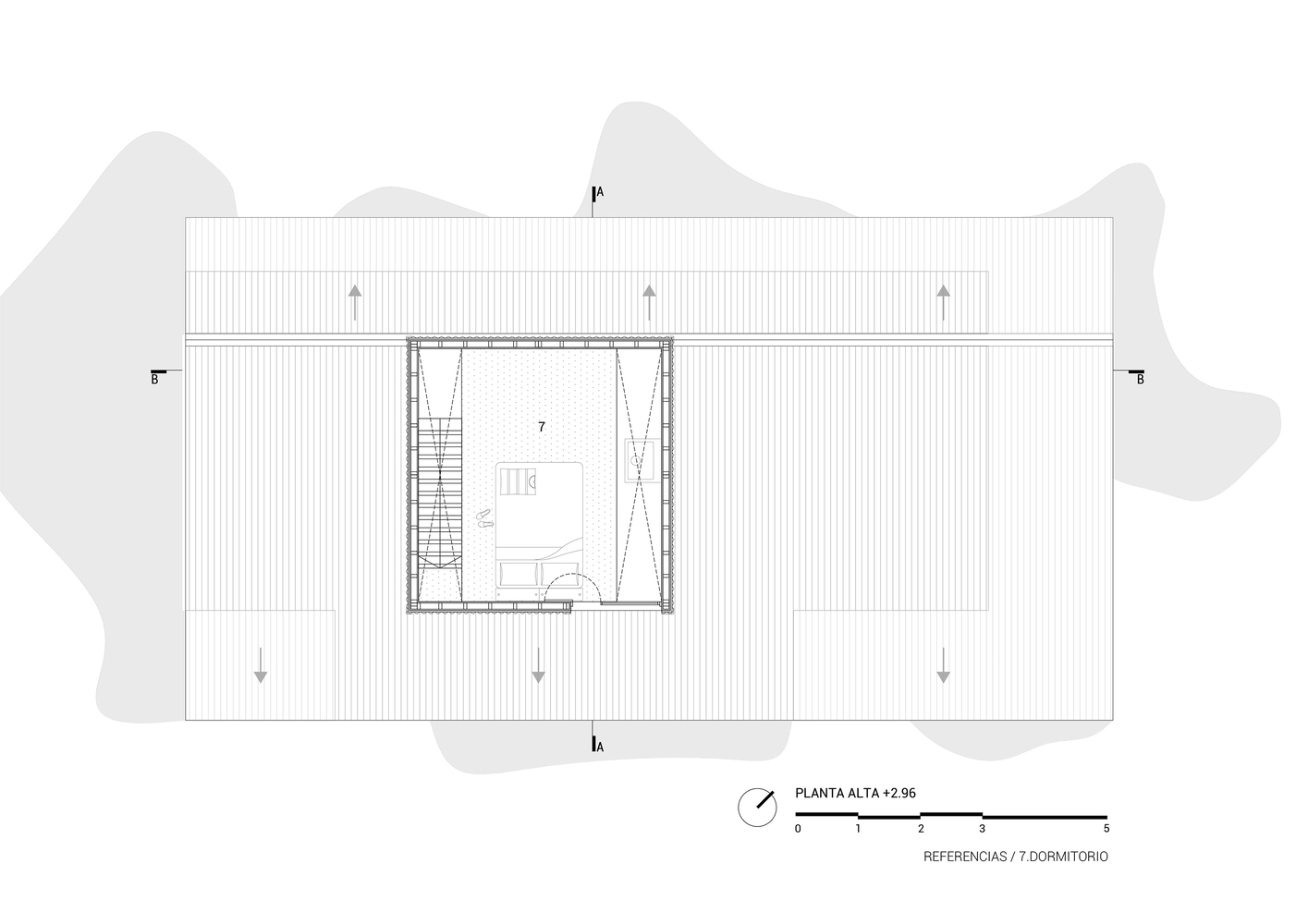
住宅以不对称的人字形屋顶重新诠释乡村建筑类型:一侧延伸形成门廊,另一侧抬升创造夹层。外观质朴,内部却明亮、温暖且灵活。64 平方米的覆盖空间中,东南侧布置了厨房与浴室,一道剧院幕布可根据场景需求开合空间。
结构采用红桉木,室内饰面为同材质的酚醛板。为将环境影响降至最低,住宅架设在混凝土桩基上,离地 50 厘米,保护了生态系统。项目保留了大部分原生植被:芦苇、草本植物与一棵黑金合欢。在 Flux Estudio 的协作下,通过路径与区域规划勾勒树木结构,强化景观与居住体验。
项目仅用三个月即竣工,全部使用当地劳动力,既优化了时间与资源,也加强了与社区的联系。住宅取名 “奥纳”,源自我们的猫咪伙伴 —— 它占据了所有空旷角落与高处。带有谦逊与移民起源印记的金属材料在此被赋予新意义。暴雨来临时,房屋如同一叶扁舟,让人联想到贝里索与恩塞纳达三角洲的河畔民居。于我们而言,与水、景观和日常共生,正是当代建筑的实践方式。