变幻莫测的光影体验充满自然韵律的木石夯土民宿设计
Aug 29 , 2025 |
Views :
829
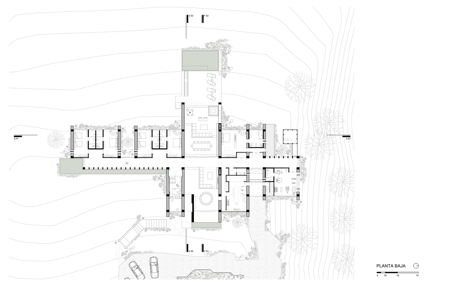
这所民宿设计以其与自然环境的紧密联系为显著特征,巧妙融合了木材、石材、混凝土和夯土等优质材料。其设计旨在凸显光影效果,通过梁柱有节奏的重复排列,在一天之中营造出变幻莫测的视觉盛宴。
房屋布局由两条轴线构成:主轴线为公共区域所在,次轴线则用于布置私密空间,两者通过一条由色素混凝土板镶边的走廊相连,这些混凝土板过滤光线,在破碎板岩风格的石质地面上投射出一系列光影。
图案的重复与对比为整个室内空间赋予了连续性与深度感,并通过朝向水景和景观区域的视觉端点,与室外空间产生互动,营造出静谧沉思的空间氛围。
房屋的朝向对于优化室内热舒适度至关重要,其夯土墙垂直于南向排列,白天减少阳光直射,保持室内凉爽;夜晚则释放积蓄的热量,提供自然暖意。
该项目在材质、光线与景观之间实现了和谐平衡,营造出一种邀请人们静心沉思的空间体验,同时敏感地适应了周边的自然环境。