让广场树影光线随时间成为空间主角的顶层住宅设计
Sep 21 , 2025 |
Views :
737
完成 Amaralina 大厦顶层公寓设计与施工是一次意义重大的学习经历。当客户买下这处房产并委托我们进行设计时,她向我们提出,希望通过改造来凸显其俯瞰圣保罗市 Rotary 广场绿树成荫景色的优势。
在完成施工设计并开始拆除工作后,原有结构的脆弱性逐渐显现:它是经过多个阶段建成的,且缺乏结构计算,存在安全隐患。我们与从一开始就参与其中的工程师里卡多・克尔一同决定,拆除整个公寓,在保留原有体量的前提下新建结构。
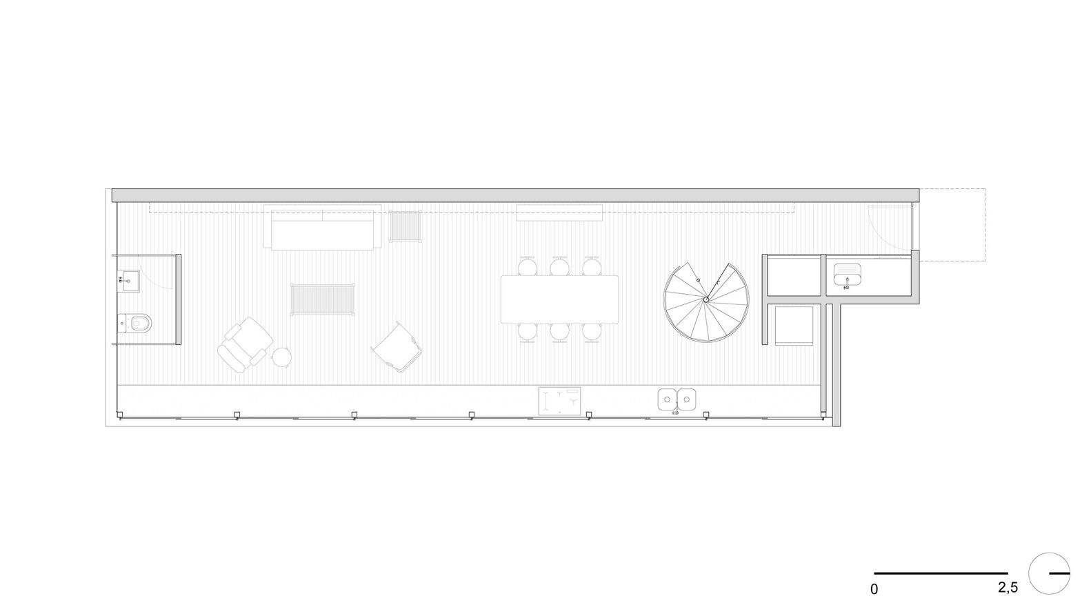
我们重新开始,从零构思这个项目,这一次,将其视为一处建于高处的亭台。考虑到这个特殊施工现场的情况,我们选择钢材作为新结构的材料,因其便于安装。采用密集排列的柱梁模块化设计,是为了减轻构件重量,从而更好地将荷载分散到大厦外围的梁上。项目遵循极具理性的原则,最终打造出一个可供灵活使用的开放空间。
除了卫生间和楼梯,仅有的固定元素就是两层楼窗台下的混凝土台面。克洛伊・阿泽维多通过软装和景观设计为公寓注入活力,与中性的结构形成鲜明对比。最后,佩德罗・科克用精准的摄影记录下了这整个过程。