把综合空间变成感官派对绿色盒子的美容沙龙店设计
Aug 12 , 2025 |
Views :
726
该美容店设计由建筑师伊莎贝拉・索尔德里奥・德・阿尔布开克(Isabela Soldorio de Albuquerque)和雷娜塔・萨洛芒(Renata Salomão)设计的 “城市美容沙龙”(Urban Beauty Lounge)项目,以现代设计语言、突破性布局和对用户体验的细致关注,为美容空间提出了全新构想。
该项目旨在打造一个超越传统服务范畴的美容沙龙,将个人护理时刻转变为完整的感官体验。客户以现代视角审视美容领域,希望创造一个融合美学、舒适与社交的空间 —— 一个真正的 “美容休憩室”,让每个细节都为难忘的体验添砖加瓦。因此,建筑在营造这种温馨、精致且多功能的氛围中扮演着关键角色。
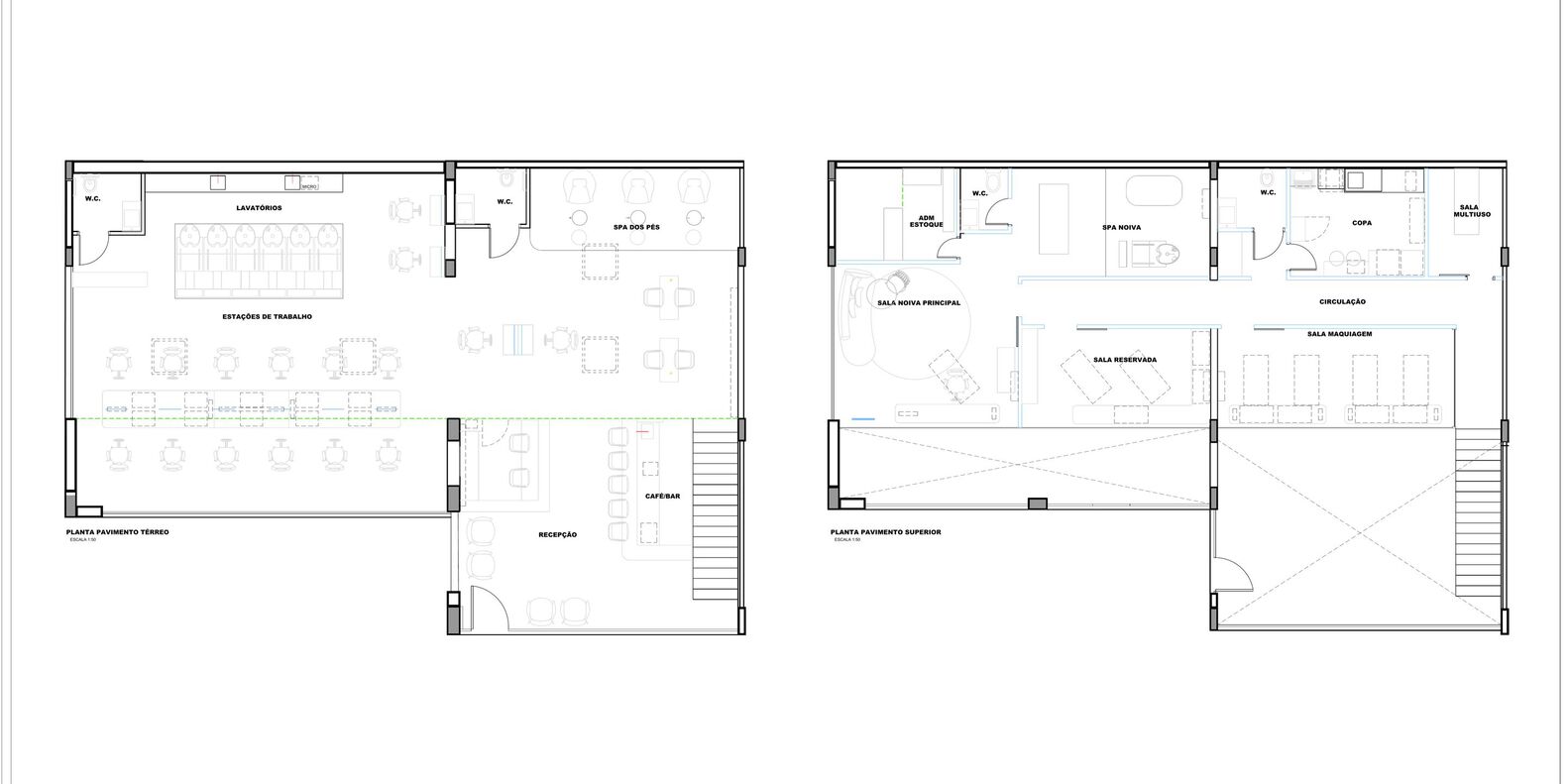
建筑设计始于布局规划,建筑师围绕核心功能(如工作区、化妆间和新娘专属室)进行布置,优先保证空间流动性和功能性。同时,加入非传统的辅助空间,如足部水疗区和接待区的标志性吧台,拓展了空间的使用范围,强化了 “美容休憩室” 作为综合休闲空间的概念 —— 在这里,个人护理与社交、放松融为一体。
材料选择基于刻意营造的对比:亮绿色瓷砖与有机形态的混凝土相互呼应,形成极具视觉冲击力和精致感的组合。品牌标志性的绿色被巧妙且策略性地运用,既出现在活动家具中,也用于墙面装饰。浅色木材带来视觉上的温暖与轻盈,而黑色金属则为整体设计增添结构严谨感与平衡感。
最终呈现的沙龙打破了行业刻板印象,提供集视觉、感官与情感于一体的完整体验。这个空间珍视客户的时间,尊重个性差异,通过每一处形态与材料的选择,诠释着对当代美容与舒适概念的全新理解。